Редова къща със собствен двор, голям гараж и гледка към планина Витоша
- 1,134,381 лв. €580,000
- 1,134,381 лв. €580,000
Описание
Луксозна редова къща в подножието на Витоша – простор, светлина, уединение и покривна тераса под звездите
DJIA Consult имаме удоволствие да Ви представим 6 къщи тип редови с отделни дворове и големи гаражи.
В подножието на планина Витоша и с покривна тераса под звездите, двор, простор, светлина и уединение – перфектният дом за ценители на качественото строителство и природата.
• Вид имот: Къща (редова), ново строителство 2025 г., луксозен имот
• Локация: София, кв. Бояна – в подножието на планина Витоша
• Цена: 580 000 € без ДДС
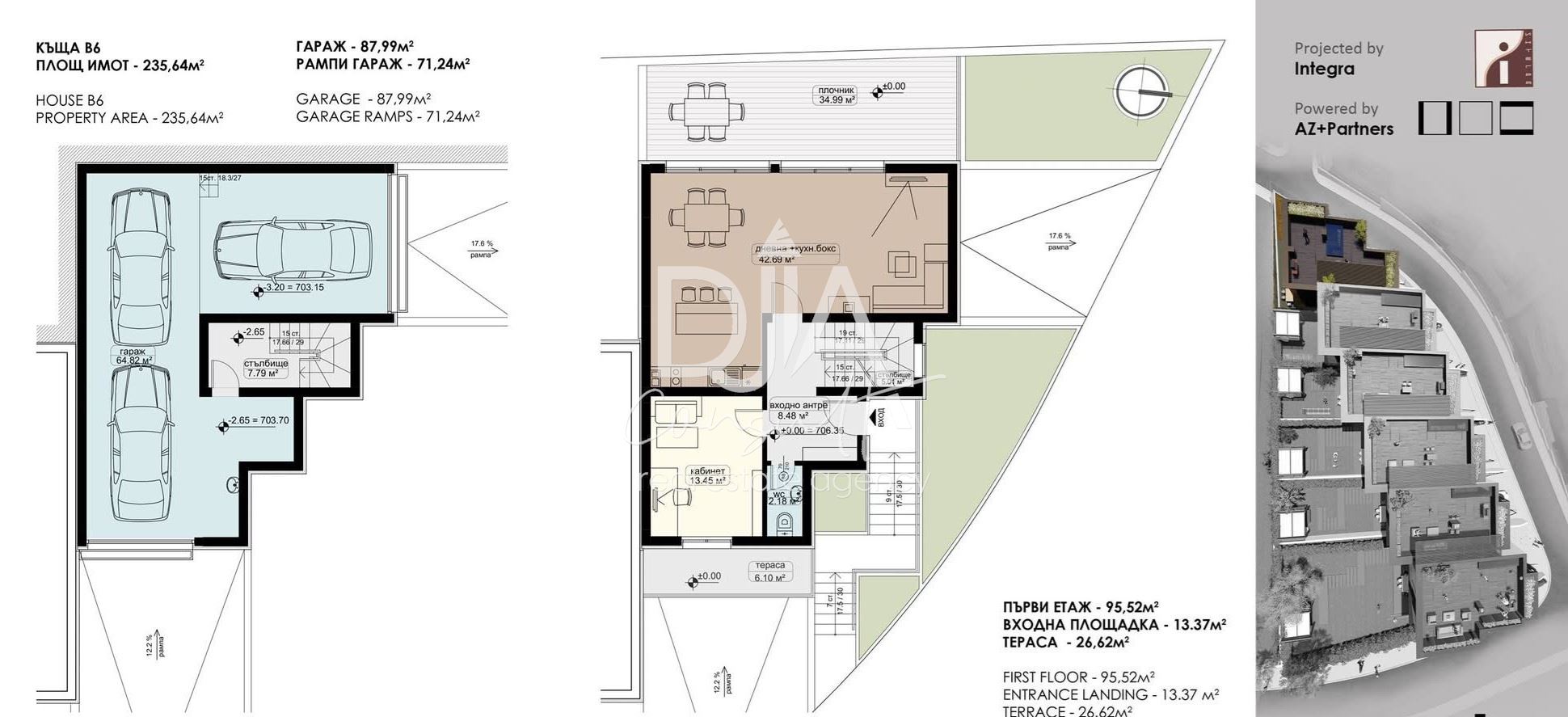
• Общa площ (РЗП): 287 кв.м, покривна тераса 105 кв.м
• Двор:236 кв.м. отделен, със съответстващо право на ползване върху част от дворното място, определено по договор за разпределение на ползване
• Гараж: голям троен – 88 кв.м
Разпределение:
• Сутерен: площадка 71 кв.м пред голям двоен гараж 88 кв.м; вътрешна връзка към жилищната част
• Първи етаж: входна площадка 13 кв.м; тераса 27 кв.м., огромна и светла дневна с кухненски бокс, възможност за кабинет за работа, тоалетна за гости; общо 96 кв.м; излаз към двора
• Втори етаж: три самостоятелни спални; master със собствена баня с тоалетна; още една баня с тоалетна за другите две спални; общо 104 кв.м;
• Покрив: покривна тераса с достъп – 105 кв.м, с потенциал за лятна кухня, джакузи, пергола и зона за релакс с гледки към Витоша
Строителство и технически параметри:
• Етап: след Акт 14; изпълнени ВиК и Ел., Газ и покриви готови
• Фасади: част от къщите – вентилируеми с врачански естествен камък
• Дограма: Reynaers
• Отопление: заложено подово отопление; изводи за климатици във всяка стая
• Комплексът е на етап Чл. 181; без ипотека върху земята
• Имотите ще бъдат уединени с ограда; озеленяване с лавровишни
Параметри на имота:
• Брой стаи: 4
• Брой спални: 3
• Брой балкони: 1
• Брой бани с тоалетни: 2
• Брой тоалетни: 1
• Брой мокро помещение: 1
• Къщата е с отделна пречиствателна система от три тела тип септична яма
Предимства:
• Уникално съчетание на природа и градски комфорт
• Много светлина и големи пространства
• Уединение, контрол на достъпа и спокойна среда
• Бърз достъп до Околовръстен път и централни точки на града
Квартал Бояна:
• Престижен и зелен район с чист въздух, бутикови къщи и отлична инфраструктура
• Близо до пътеки на Витоша, Бояна водопад, Национален исторически музей и удобен градски транспорт
За повече информация и огледи Свържете се с нас и изберете своя дом под звездите над Бояна!
• 📞 Румяна Асенова – 0884 400 293
• 📞 Грета Матеева – 0889 900 061
Детайли
-
ID на оферта 577
-
Цена 1,134,381 лв. €580,000
-
Квадратура 287 m²
-
Спални 3
-
Стаи 4
-
Година на строеж 2025
-
Тип имот Къща
-
Вид оферта Продажби
-
Етажи 2
-
Обзавеждане Необзаведен
-
Вид строителство Тухла
-
Цена кв.м. 2021
-
Отопление Газ
-
Ново строителство Да
-
Балкони (бр.) 1
-
Тоалетни (бр.) 1
-
Баня с тоалетна (бр.) 2


















