Редова къща със собствен двор, голям гараж и гледка към планина Витоша
- €550,000/1,075,707 лв.
- €550,000/1,075,707 лв.
Описание
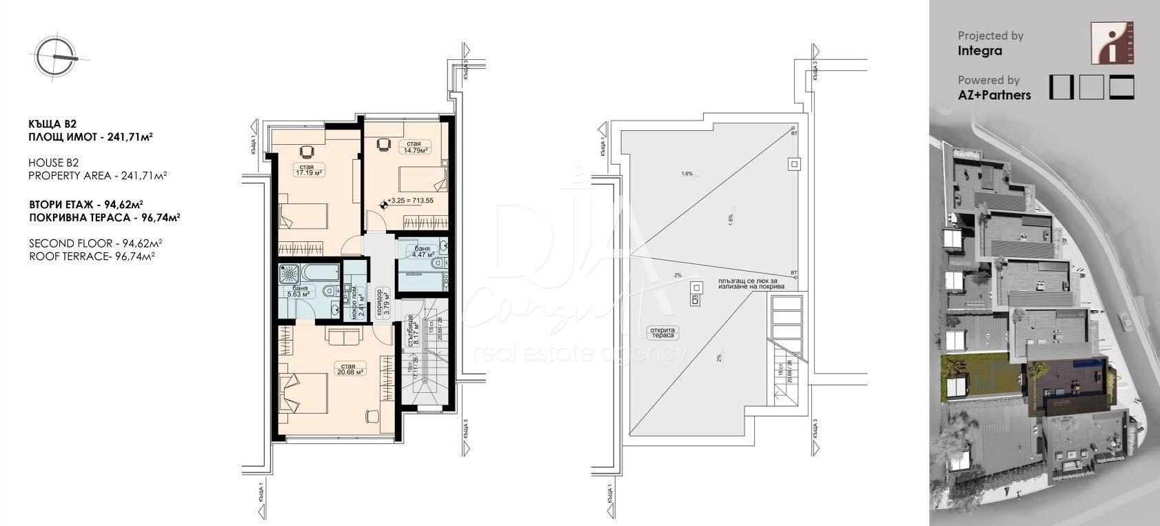
Къща в подножието на Витоша, простор, светлина, уединение и покривна тераса под звездите.DJIA Consult имаме удоволствие да Ви представим 6 къщи тип редови с отделни дворове и големи гаражи.В подножието на планина Витоша и с покривна тераса под звездите, двор, простор, светлина и уединение перфектният дом за ценители на качественото строителство и природата. Вид имот: Къща (редова), ново строителство 2025 г., луксозен имот Локация: София, кв. Бояна в подножието на планина Витоша Цена: 550 000 без ДДС Общa площ (РЗП): къща 208 кв.м. Двоен голям гараж 78 кв.м. Покривна тераса 97 кв.м Двор: 242 кв.м. отделен, със съответстващо право на ползване върху част от дворното място, определено по договор за разпределение на ползване Разпределение: Сутерен: площадка 54 кв.м пред голям двоен гараж 78 кв.м; вътрешна връзка към жилищната част Първи етаж: входна площадка 14 кв.м; тераса 22 кв.м., огромна и светла дневна с кухненски бокс, възможност за кабинет за работа, тоалетна за гости; общо 77 кв.м; излаз към двора Втори етаж: три самостоятелни спални; master със собствена баня с тоалетна; още една баня с тоалетна за другите две спални; мокро помещение общо 95 кв.м; Покрив: покривна тераса с достъп 97 кв.м, с потенциал за лятна кухня, джакузи, пергола и зона за релакс с гледки към ВитошаСтроителство и технически параметри: Етап: след Акт 14; изпълнени ВиК и Ел., Газ и покриви готови Фасади: част от къщите вентилируеми с врачански естествен камък Дограма: Reynaers Отопление: заложено подово отопление; изводи за климатици във всяка стая Комплексът е на етап Чл. 181; без ипотека върху земята Имотите ще бъдат уединени с ограда; озеленяване с лавровишниПараметри на имота: Брой стаи: 4 Брой спални: 3 Брой балкони: 1 Брой бани с тоалетни: 2 Брой тоалетни: 1 Брой мокро помещение: 1 Къщата е с отделна пречиствателна система от три тела тип септична ямаПредимства: Уникално съчетание на природа и градски комфорт Много светлина и големи пространства Уединение, контрол на достъпа и спокойна среда Бърз достъп до Околовръстен път и централни точки на градаКвартал Бояна: Престижен и зелен район с чист въздух, бутикови къщи и отлична инфраструктура Близо до пътеки на Витоша, Бояна водопад, Национален исторически музей и удобен градски транспорт За повече информация и огледи Свържете се с нас и изберете своя дом под звездите над Бояна! 📞 Грета Матеева 0889 900 061 📞 Румяна Асенова 0884 400 293
Детайли
-
ID на оферта 576
-
Цена €550,000/1,075,707 лв.
-
Квадратура 340 m²
-
Спални 3
-
Стаи 4
-
Баня 0
-
Година на строеж 2025
-
Тип имот Къща
-
Вид оферта Продажби
-
Етажи 2
-
Обзавеждане Необзаведен
-
Вид строителство Тухла
-
Цена кв.м. 1618
-
Отопление Електричество
-
Ново строителство Да
-
Балкони (бр.) 1
-
Тоалетни (бр.) 2
-
Баня с тоалетна (бр.) 2














